Продажа 1-комнатной квартиры
Ленинградская область, Новоселье пос., Центральная ул., д 10, корпус 1
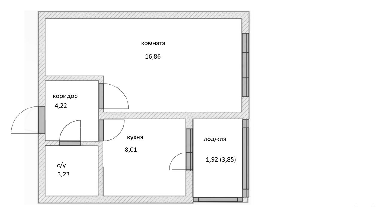
- 34 м²
- Площадь
- 16.86 м²
- Жилая площадь
- 8.1 м²
- Площадь кухни
- 4/12
- Этаж
5 400 000 ₽
157 711 ₽ за м²
ID объявления 11182352
Поделиться
Добавить в избранное
№336197 Продается уютная квартира вашей мечты!
Предлагаем светлую и просторную квартиру с прекрасной атмосферой, где каждый уголок наполнен теплом и комфортом. В квартире имеется просторная гардеробная, идеально подходящая для хранения всех ваших вещей, а также балкон, где можно наслаждаться утренним кофе и вечерними закатами.
Особенности:
- Закрытый двор для вашей безопасности и уединения
- Рядом находятся больница и поликлиника, что обеспечивает удобство и доступность медицинских услуг
- В шаговой доступности — живописный лесопарк, где можно гулять и заниматься спортом
- Ледовая арена для любителей активного отдыха
- Множество ресторанов, кафе и магазинов для вашего комфорта и удовольствия
Не упустите шанс стать владельцем этой замечательной квартиры! Звоните для записи на просмотр!
Дата обновления: 7 мая 2025