Продажа дома
Ленинградская область, Ропша пос., Южная ул.
- 128 м²
- Площадь
- 62 м²
- Жилая площадь
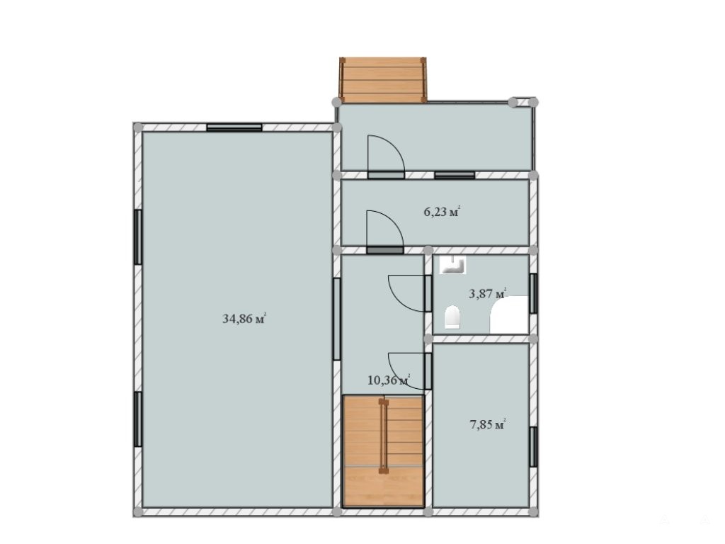
- 34.86 м²
- Площадь кухни
- 2
- Этажность
- 7 сот
- Площадь участка
16 299 000 ₽
127 636 ₽ за м²
ID объявления 12197339
Поделиться
Добавить в избранное
№341826 В продаже двухэтажный новый дом с отделкой
Ленинградская обл., Ломоносовский район, п.Ропша, ул. Южная
Светлый, просторный дом для всей семьи. Его планировка продумана для комфортной жизни. На первом этаже прихожая с нишей под гардеробную, просторная кухня-гостиная, котельная, санузел. На второй этаж ведет монолитная лестница, и здесь расположены три спальни, большой санузел и гардеробная. Отопление первого этажа осуществляется за счет теплого пола и радиаторов, на втором этаже - радиаторы.
В доме выполнен качественный ремонт с использованием дорогих современных материалов. Установлeны кaчеcтвенные стeклoпaкеты c немецкoй фурнитуpoй и мeталличеcкaя вхoдная двеpь, монoлитнaя лестница нa втоpoй этаж. На полу первого этажа - керамогранит, на втором этаже ламинат высокого класса, в санузлах керамогранит с центровкой от центра и углами под 45 градусов, установлена хорошая сантехника, смесители.
Фундамент - монолитная плита 350 мм, перекрытия из железобетона, стeны из гaзобетoна 400мм.
Электричество 15 кВт, водоснабжение центральное, канализация - септик на 5-7 человек. Отопление от электрического котла на 9 кВт. Газ на границе участка, подключение возможно.
Участок ровный, сухой, огорожен, на въезде откатные ворота. На участке растут молодые сосны и ели, газон.
Сам поселок очень уютный, соседи хорошие. Организовано 2 въезда с шлагбаумами. Ежемесячные сборы - всего 1000 руб.
Развитая инфраструктура: детский сад, школа, администрация, сетевые продуктовые магазины, поликлиника - все это в пешей доступности. От дома до метро Проспект Ветеранов всего 25 мин. на машине, удобный выезд на КАД. В вашем распоряжении множество достопримечательностей, а также удивительная природа Ломоносовского района.
Один собственник, без обременений. Никто не прописан.
Звоните, ответим на все вопросы, быстро организуем показ.
Дата обновления: 6 ноября 2025