Продажа дома

Ленинградская область, коттеджный посёлок Демидовская усадьба, 19

100 м²
Площадь
1
Этажность
8 сот
Площадь участка

13 900 000 ₽

139 000 ₽ за м²

ID объявления 11981077

Поделиться

Добавить в избранное

id:9467.
Ленинградская область, Гатчинский муниципальный округ, городской посёлок Тайцы, коттеджный посёлок Демидовская усадьба

⚡ Подходит под льготные ипотеки: IT-ипотека, семейная ипотека. Продажа от юридического лица. ⚡

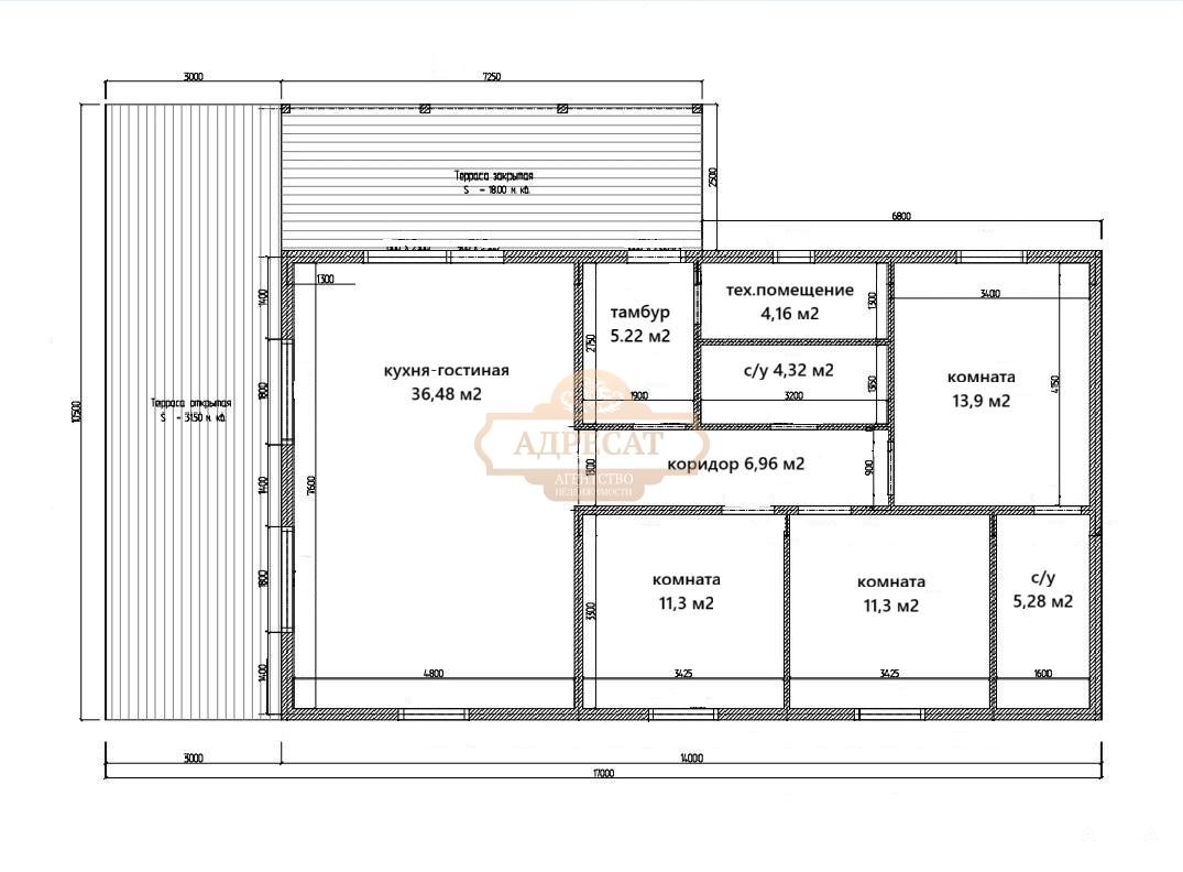
 Качественный одноэтажный каркасный дом  площадью 98, 9 м² + открытая терраса 49, 5 м2 на участке 8 соток. Продуманная и удобная планировка: просторная кухня-гостиная 36, 48 м2, 3 отдельные комнаты (11, 3/11, 3/13, 9 м2), 2 санузла, котельная, прихожая. Дом подходит для постоянного круглогодичного проживания. Возможна постоянная регистрация.

Фундамент - ленточный, каркас дома - сухая строганная доска камерной сушки. Утепление: стены, пол, кровля - 200 мм. Кровля - металлочерепица со снегозадержателями и водосточной системой. Наружная отделка: имитация бруса заводской покраски. Электричество -15 кВт, канализация - локальная станция очистки на 5-6 человек, скважина. Газ по границе участка. Водяной тёплый пол по всему дому. Установлен электрический и газовый котел. Потолок натяжной со встроенными светильниками. Межкомнатные двери. В санузлах установлена сантехника и мебель, стены и пол отделаны кафелем. На полу в кухне-гостиной и с\у керамогранит, в комнатах - ламинат. Полная внутренняя отделка дома под ключ, Вам остается только расставить мебель по своему вкусу.

Участок 8 соток, ИЖС. Участок угловой, соседи с 2х сторон (уже живут), ровный, правильной формы. Залита площадка для авто. Дорога практически до самого участка - асфальт.  Чистый воздух круглый год. Соседи приличные и дружелюбные. Дороги чистят. В пешей доступности прекрасный парк Демидовская усадьба – отличное место для пеших и вело прогулок. Также недалеко находится горнолыжный курорт Туутари парк, Безымянные озера. Вся необходимая инфраструктура в гп Тайцы – школа, детский сад, учреждения дополнительного образования и досуга (кружки и занятия для взрослых и детей), музыкальная школа, магазины, почта, салоны красоты, пункты выдачи интернет-заказов, частная клиника, государственная амбулатория и т.д. Заканчивается стройка спорткомплекса с бассейном в 5 км. Есть всё необходимое для комфортной жизни.

До остановки общественного транспорта от дома 15-20 минут пешком. Ходит прямая маршрутка до м. пр. Ветеранов/ Гатчина. В 2, 5 км - ЖД станция Тайцы, откуда 40 минут до Балтийского вокзала СПб без пробок. Дорога на автомобиле до КАД 15-20 минут.

Полное юридическое сопровождение сделки. Оказываем помощь в одобрении ипотеки при необходимости. Возможны разные варианты оплаты. Звоните, проведем показ в удобное время по предварительной договоренности.

Дата обновления: 9 сентября 2025