Продажа коттеджа

Ленинградская обл, Ропшинская долина тер. ТСН, Радужная, 9

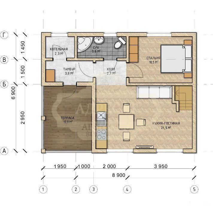
105 м²
Площадь
2
Этажность
6 сот
Площадь участка

6 990 000 ₽

66 572 ₽ за м²

ID объявления 12101585

Поделиться

Добавить в избранное

id:9503.
Ленинградская область, Ломоносовский р-н, Ропшинское сельское поселение, КП Радужный​

⚡Подходит по семейную ипотеку, IT ипотеку!!! ⚡

⚡Собраны все уведомления, продажа от аккредитованного ИП, получена справка для мат.капитала!⚡

Стоимость указана за наличный расчёт, в ипотеку стоимость 7 290 000 руб.!

Качественный каркасный дом с продуманной планировкой, общей площадью 105 м² (включая открытую террасу, 7х9 метров, 2 этаж мансардный). Фундамент - железобетонные сваи, каркас дома - сухая строганная доска камерной сушки, утепление минеральной ватой Knauf: стены -150 мм, перекрытия, пол,  кровля - 200 мм. 

Кровля - металлочерепица, наружная отделка имитация бруса заводской покраски (краска Тиккурила). Электричество -10 кВт, канализация - локальная станция очистки на 5 человек, скважина (колодец). Отопление: 1 этаж - водяной тёплый пол,  2 этаж - радиаторы, электрокотел.  Полная внутренняя отделка дома под ключ, Вам остается только расставить мебель по своему вкусу.  Стены - имитация бруса заводской покраски (краска Тиккурила), пол - кварцвиниловый ламинат (не боится механических повреждений и влаги). Потолок натяжной со встроенными светильниками. Межкомнатные двери. В санузлах установлена сантехника и мебель. Удобная лестница на 2 этаж. Участок 6 соток, ровный, сухой, правильной формы. Дом с полной чистовой отделкой, можете сразу заезжать, расставлять мебель и наслаждаться прелестями загородной жизни!

В коттеджном поселке многие живут круглогодично, дороги чистят, установлен шлагбаум на въезде. От деревни Михайловская есть развозка школьного автобуса. Дом находится в живописном месте на склоне, откуда открываются потрясающие виды (рядом с деревней Михайловская). Рядом есть ипподром, где можно тренироваться и совершать конные прогулки.

От КАД 10 км, до центра города 50 мин. на авто. В 10 минутах - Школа, детский сад, магазины, пункты выдачи заказов и т.д.  Вся необходимая инфраструктура в  п. Ропша, п. Кипень, г. Красное село и г. Петергоф: ТЦ, поликлиники, банки, кинотеатры, салоны красоты и т.д.  ​​​​​​

Полное юридическое сопровождение сделки. Оказываем помощь в одобрении ипотеки при необходимости. Возможны разные варианты оплаты (материнский капитал, субсидии,  семейная ипотека). Звоните, проведем показ в удобное время по договоренности.

Дата обновления: 3 октября 2025