Аренда производственного комплекса

Гатчина, Индустриальная улица

2 535 000 ₽/мес

10 140 ₽ за м²/год

3 000 м²
Площадь
1
Этажность

Поделиться

Добавить в избранное

Гатчинский район ЛО, г. Гатчина, ул. Индустриальная, м. Московская

Аренда цеха от 1500 м² до 4500 м² с кран-балками на 10 тонн на участке 1 га

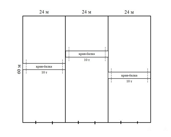
Сдается в аренду отапливаемый цех общей площадью 4500 м² на земельном участке 1 га. Помещение идеально подходит для промышленного производства или логистического комплекса. Высота потолков составляет 12 метров, что обеспечивает простор для любого оборудования. Конструкция здания включает три независимых пролета по 1500 м², каждый из которых оснащен кран-балкой грузоподъемностью 10 тонн с высотой до крюка 8 метров. Возможность арендовать как весь цех, так и отдельные пролеты, аренда одного пролета 1, 4 млн. руб в месяц. В каждом пролете предусмотрены собственные ворота для грузового транспорта, обеспечивая бесперебойную логистику. Полы ровные и обеспыленные с нагрузкой 8 тонн на квадратный метр. Объект полностью обеспечен всеми коммуникациями: отопление, водоснабжение, канализация и электроэнергия мощностью 500 кВт на весь цех.

Цена 845 руб. за кв. м.+НДС 5%

Консультант Андрей Салимов

П50

Код объекта: 20673

Дата обновления: 18 ноября 2025